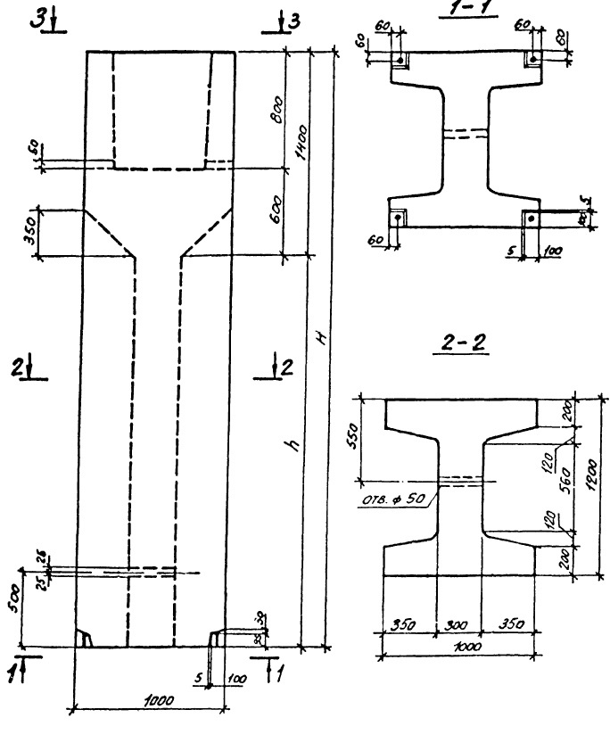
Блок-стакан верхний ВБ 9-10-39-3 предназначен для использования в строительстве железобетонных конструкций. Он обеспечивает надежное соединение элементов и обеспечивает необходимую прочность и устойчивость конструкции.
В наличии 284 шт.
Собственное производство 150 тыс. м3 железобетонных изделий в год Наши производственные мощности позволяют нам изготавливать более 150 тыс. м3 железобетонных изделий в год. Мы гарантируем соблюдение сроков! Наш опыт и профессионализм позволяют нам уверенно утверждать, что ваш заказ будет выполнен вовремя и с высочайшим качеством
Высокое качество и строгое
соблюдение пропорций
Наши изделия проходят тщательный анализ качества на каждом этапе производства.
Мы уделяем особое внимание каждой детали, чтобы гарантировать высокое качество
наших продуктов. При отгрузке мы предоставляем полный пакет документов, подтверждающих
соответствие стандартам и требованиям.Кроме того, мы предоставляем гарантии качества,
чтобы наши клиенты могли быть уверены в надежности и долговечности приобретаемой продукции
Оплата после отгрузки Оплата производится после отгрузки на Вашем объекте, чтобы Вы смогли удостовериться в качестве и точности изделий. Мы придерживаемся прозрачных и понятных условий взаимодействия с каждым клиентом, соблюдая четкий порядок работы.
Блок-стакан верхний ВБ 9-10-39-3 предназначен для использования в строительстве железобетонных конструкций. Он обеспечивает надежное соединение элементов и обеспечивает необходимую прочность и устойчивость конструкции.
перезвоним в течение 5 минут
| Способ доставки | MAX длина груза, м | Стоимость доставки по Пушкину |
|---|---|---|
| Машина до 3,5 тн до 30 м3 | 6 | от 2 100 руб |
| Машина до 5 тн до 30 м3 | 6 | от 2 500 руб |
| Машина до 10 тн до 50 м3 | 8 | от 4 200 руб |
| Машина до 20 тн до 80 м3 | 8 | от 8 600 руб |
| Манипулятор до 5 тн | 5 | от 3 700 руб |
| Манипулятор до 10 тн | 10 | от 4 600 руб |
| Манипулятор до 15 тн | 14 | от 6 900 руб |
Привезем манипулятором, шаландой, самосвалом или тонарами. А если на объекте труднодоступная местность, то вездеходами!
На вашем объекте нет крана для перемещения габаритных изделий? Предоставим кран в аренду.
Поджимают сроки, а ваши рабочие слишком заняты строительством? Поможем с выгрузкой и монтажом.
В нашем распоряжении более 300 единиц техники.
Это позволяет своевременно осуществлять доставку и выполнять монтаж любой сложности.
Чтобы получить бесплатную консультацию
и узнать о выгодных акциях, просто позвоните нам
или оставьте свой номер, и мы перезвоним сами!
Железнодорожная улица, 11к10
от 7:00 до 21:00
Железнодорожная улица, 11к3
от 7:00 до 21:00
Пискарёвский проспект, 125к2
от 7:00 до 21:00
Корабельная улица, 6ДО
от 7:00 до 21:00
Проспект Стачек, 47БЕ
от 7:00 до 21:00
Санкт-Петербург, Колпинский район, посёлок Металлострой, Северный проезд, 1АБ
от 7:00 до 21:00
Лен.область, Тосненский р-н, г.Тельмана, Красноборская дорога, 4к4
от 7:00 до 21:00
Санкт-Петербург, Коннолахтинский проспект, 12к2К
от 7:00 до 21:00
Санкт-Петербург, Колпинский район, посёлок Металлострой, Северный проезд, 1АБ
от 7:00 до 21:00
Железнодорожная улица, 11к3
от 7:00 до 21:00
Софийская улица, 96АЕ
от 7:00 до 21:00
Проспект Обуховской Обороны, 120ЕЮ
от 7:00 до 21:00
Проспект Александровской Фермы, 29к6с1
от 7:00 до 21:00
улица Коммуны, 67ВБ
от 7:00 до 21:00
улица Оптиков, 20Б
от 7:00 до 21:00
Да. Самый распространенный способ оплаты у нас - оплата по факту получения товара. При этом, если доставленный товар был ненадлежащего качества, то Вы в праве от него отказаться.
Да конечно, мы всегда рады видеть Вас на нашей площадке. Всё покажем, расскажем, пройдем любые проверки на качество материала. Обязательна предварительная запись по номеру телефону указанному на сайте!
С каждой товарной позицией мы предоставляем все сертификаты и паспорта качества, а также товарно-транспортную накладную.
После оформления заявки с Вами свяжется персональный менеджер для уточнения деталей заказа. Далее он передает заявку нашему логисту для оценки стоимости и сроков доставки, которые впоследствии и оглашаются заказчику.
Приехать в офис можно с 08.00 до 20.00. Необходима предварительная запись у менеджера для получения пропусĸа в Бизнес-центр.
Да, мы работаем с НДС 20% — то есть на общей системе налогообложения.
Минимальная сумма платежа — 1 рубль.
Максимальная сумма платежа отсутствует.
Номер карты (PAN) должен иметь не менее 15 и не более 19 символов
Мы принимаем платежи с сайта по следующим банковским картам
Вы можете оплатить наличными по факту приема материала после проверки качества и количества заказанного материала.
Менеджер отправит Вам счет, Вы проверяете номенклатуру товара, количество. После оплаты осуществляется доставка либо Вы забираете товар со склада самовывоза.










Поможем подобрать материал и рассчитать стоимость по вашему чертежу!
| Количество | Время доставки |
|---|---|
| до 50шт. | 1 сутки |
| 50-100шт. | от 3 суток |
| 100-200шт. | от 6 суток |
| 200-400шт. | от 10 суток |