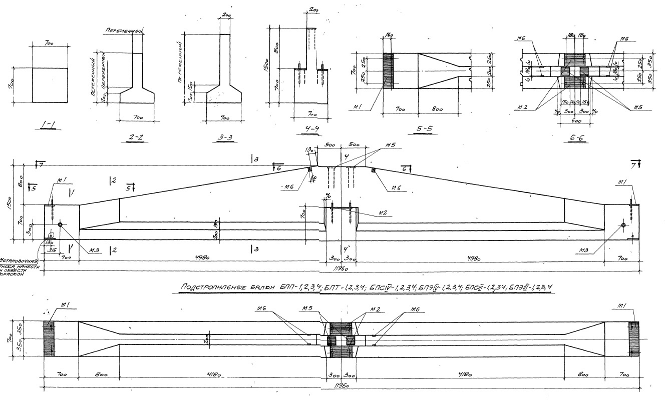
Балка подстропильная БПЭ IV-2 к предназначена для использования в строительстве как элемент каркаса кровли. Изготовлена из железобетона, что обеспечивает прочность и долговечность конструкции. Балка имеет специальное пазообразное соединение для удобства монтажа и обеспечения надежности крепления.
Балка подстропильная БПЭ IV-2 к широко используется в строительстве жилых и коммерческих зданий для создания каркаса кровли. Она обеспечивает необходимую поддержку и жесткость конструкции, что позволяет увеличить срок службы кровли и обеспечить безопасность здания. Балка подстропильная также применяется в реконструкциях и ремонтах зданий для замены старых или поврежденных элементов кровли.









